寄井西住宅B棟(単身者向け住宅)について

公開日 2025年10月23日

寄井西住宅外観.jpg

敷地内には4棟の建物があり、A棟・C棟・D棟は城西高校神山校の生徒寮として利用されています。
B棟は単身者向け住宅で、現在満室のため入居者募集は行っておりません。

〇所在地
徳島県神山町神領字北434-2

〇建物概要
敷地内に4棟あり
A棟・C棟・D棟:城西高校神山校の生徒寮
B棟:単身者向け住宅(※現在満室、入居者募集なし)

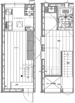
〇規格
1階:約15㎡(約9.3帖)
2階:約11㎡(約6.8帖)

間取り2.jpg

〇家賃等
・月額:25,000円
・敷金:50,000円
・駐車場:各戸1台無料
・電気・水道・通信:各戸で個別契約
・プロパンガス:供給業者から使用料に応じて別途請求されます。
・契約形態:定期借家契約(入居要件を満たす間は再契約可)

〇共益費
・毎月1,000円
・入居月から年度末までの金額を一括で集金

〇入居者資格
・65歳未満の単身者
・寄井西住宅に住所を有することができる方

〇その他
・物置など仮設建築物の屋外設置は不可
・ペット飼育不可

1階.jpg

1階 部屋の奥がIHクッキングヒーター2口コンロのキッチンで洗濯機を置くスペースもあります。

階段.jpg

部屋は上下階に分かれています。階段横の柱は神山町で生産された天然絞り丸太を使用しています。

2階2.jpgのサムネイル画像

2階 ベッドを置くことができるスペースとお風呂、トイレなどがあります。エアコン設置済。

トイレ.jpg

お風呂、トイレはユニットバスです。

屋根裏.jpg

季節ものなどを収納できるロフトがあります。

お問い合わせ

総務危機管理課
TEL:088-676-1111